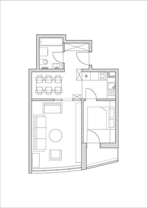
Zbog sve popularnijeg rada od doma, bračni par je odlučio adaptirati stan na način da se osiguraju dva radna prostora u relativno malenom stanu od cca 44m2 s jednom spavaćom sobom.
Uklanjanjem pregradnog zida i izmještanjem kuhinje omogućen je veći otvoreni prostor s povezanom kuhinjom, blagovaonicom i dnevnim boravkom. Za osiguranje dovoljno spremišnog prostora projektiran je jedan "L" element koji se proteže duž zida i sadrži kuhinju, ormare, nišu za TV i radni kutak.
Spavaća soba je premještanjem kuhinje povećana i reorganizirana tako da se osigura više mjesta za ormare i da se smjesti drugi radni kutak.
Stan M15
Potpuna adaptacija stana u Zagrebu s izradom namještaja po mjeri

Autor: Fani Frković
Suradnik: Filip Brebrić (troškovnik)
Lokacija: Zagreb
Faza: Izvedeno
Investitor: Privatni
Površina: 44 m2









